DRŽAVNE NEKRETNINE

[FOTO] Država daje u najam čak 29 atraktivnih poslovnih prostora, pogledajte što se sve nudi

02.03.2021 u 19:11

Bionic
Reading

Raspisan je natječaj za zakup 29 poslovnih prostora u vlasništvu Republike Hrvatske koji se, osim u Zagrebu, nalaze u Osijeku, Zadru, Splitu, Bjelovaru, Dubrovniku, Opatiji, Slavonskom Brodu, Karlovcu, Varaždinu, Petrinji i Vrginmostu. Rok za podnošenje ponuda je do 26. ožujka 2021. do 12 sati

Prostori se nalaze na atraktivnim lokacijama, veličine su od 10 do 250 kvadratnih metara, početnih iznosa zakupa za pojedine poslovne prostore već od 490 kuna.

Najveći početni iznos mjesečne zakupnine je u Dubrovniku i iznosi 600 kuna za kvadratni metar prostora unutar povijesne jezgre dok se cijena ponuđenog četvornog metra u Zagrebu kreće od 80 kuna na više.

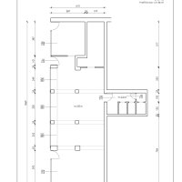
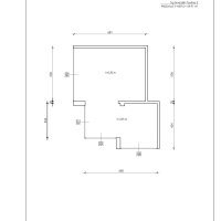
Zagreb - Gajnice 5

Zagreb - Gajnice 5
  • Zagreb - Gajnice 5
  • Zagreb - Gajnice 5
  • Zagreb - Gajnice 5
  • Zagreb - Gajnice 5
Zagreb - Gajnice 5 Izvor: Licencirane fotografije / Autor: Državne nekretnine

Površina prostora je 43 kvadratna metra. Nalazi se u prizemlje ulične zgrade, a početna mjesečna neto zakupnina je 1.186,37 kuna.

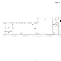
Zagreb - Ilica 35

Zagreb - Ilica 35
  • Zagreb - Ilica 35
  • Zagreb - Ilica 35
  • Zagreb - Ilica 35
  • Zagreb - Ilica 35
  • Zagreb - Ilica 35
Zagreb - Ilica 35 Izvor: Licencirane fotografije / Autor: Državne nekretnine

Površina prostora je 152,94 kvadratna metra. Nalazi se u prizemlju dvorišne zgrade, a početna mjesečna neto zakupnina je 4.942,75 kuna.

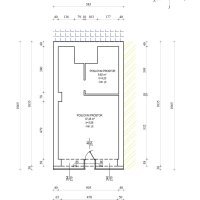
Zagreb - Ilica 69

Zagreb - Ilica 69
  • Zagreb - Ilica 69
  • Zagreb - Ilica 69
Zagreb - Ilica 69 Izvor: Licencirane fotografije / Autor: Državne nekretnine

Površina prostora je 24,45 kvadratnih metara. Nalazi se u prizemlju dvorišne zgrade, a početna mjesečna neto zakupnina je 1.079,46 kuna.

Zagreb - Ilica 87, 87/1 i 87/2

Zagreb - Ilica 87, 87/1 i 87/2
  • Zagreb - Ilica 87, 87/1 i 87/2
  • Zagreb - Ilica 87, 87/1 i 87/2
Zagreb - Ilica 87, 87/1 i 87/2 Izvor: Licencirane fotografije / Autor: Državne nekretnine

Površina prostora je 34,06 kvadratnih metara. Nalazi se u prizemlju ulične zgrade, a početna mjesečna neto zakupnina je 2.130,45 kuna.

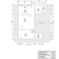
Zagreb - Jurišićeva 26

Zagreb - Jurišićeva 26
  • Zagreb - Jurišićeva 26
  • Zagreb - Jurišićeva 26
  • Zagreb - Jurišićeva 26
Zagreb - Jurišićeva 26 Izvor: Licencirane fotografije / Autor: Državne nekretnine

Površina prostora je 88,92 kvadratna metra. Nalazi se u prizemlju ulične zgrade, a početna mjesečna neto zakupnina je 7.108,96 kuna.

Zagreb - Trg hrvatskih pavlina 2

Zagreb - Trg Hrvatskih Pavlina 2
  • Zagreb - Trg Hrvatskih Pavlina 2
  • Zagreb - Trg Hrvatskih Pavlina 2
  • Zagreb - Trg Hrvatskih Pavlina 2
Zagreb - Trg hrvatskih pavlina 2 Izvor: Licencirane fotografije / Autor: Državne nekretnine

Površina prostora je 25,58 i 34,39 kvadratnih metara. Nalazi se u prizemlju zgrade, a početna mjesečna neto zakupnina je 1.654,57 kuna.

Zagreb - Nova Ves 81

Zagreb - Nova Ves 81
  • Zagreb - Nova Ves 81
  • Zagreb - Nova Ves 81
  • Zagreb - Nova Ves 81
Zagreb - Nova Ves 81 Izvor: Licencirane fotografije / Autor: Državne nekretnine

Površina prostora je 81,50 kvadratnih metara. Nalazi se u prizemlju ulične zgrade, a početna mjesečna neto zakupnina je 3.915,63 kune.

Zagreb - Pod zidom 12

Zagreb - Pod Zidom 12
  • Zagreb - Pod Zidom 12
  • Zagreb - Pod Zidom 12
  • Zagreb - Pod Zidom 12
  • Zagreb - Pod Zidom 12
  • Zagreb - Pod Zidom 12
Zagreb - Pod zidom 12 Izvor: Licencirane fotografije / Autor: Državne nekretnine

Površina prostora je 103,71 kvadratni metar. Nalazi se u prizemlju i podrumu ulične zgrade, a početna mjesečna neto zakupnina je 6.312,04 kune.

Zagreb - Preradovićeva 18/1

Zagreb - Preradovićeva 18/1
  • Zagreb - Preradovićeva 18/1
  • Zagreb - Preradovićeva 18/1
  • Zagreb - Preradovićeva 18/1
Zagreb - Preradovićeva 18/1 Izvor: Licencirane fotografije / Autor: Državne nekretnine

Površina prostora je 27,37 kvadratnih metara. Nalazi se u prizemlju dvorišne zgrade, a početna mjesečna neto zakupnina je 856 kuna.

Zagreb - Vinogradska cesta 5

Zagreb - Vinogradska cesta 5
  • Zagreb - Vinogradska cesta 5
  • Zagreb - Vinogradska cesta 5
  • Zagreb - Vinogradska cesta 5
Zagreb - Vinogradska cesta 5 Izvor: Licencirane fotografije / Autor: Državne nekretnine

Površina prostora je 11,63 kvadratna metra. Nalazi se u prizemlju ulične zgrade, a početna mjesečna neto zakupnina je 494,51 kunu.

Zagreb - Vlaška 99A

Zagreb - Vlaška 99A
  • Zagreb - Vlaška 99A
  • Zagreb - Vlaška 99A
Zagreb - Vlaška 99A Izvor: Licencirane fotografije / Autor: Državne nekretnine

Površina prostora je 58 kvadratnih metara. Nalazi se u prizemlju ulične zgrade, a početna mjesečna neto zakupnina je 3.327,66 kuna.

Bjelovar - Jurja Haulika 14B

Bjelovar - Jurja Haulika 14B
  • Bjelovar - Jurja Haulika 14B
  • Bjelovar - Jurja Haulika 14B
Bjelovar - Jurja Haulika 14B Izvor: Licencirane fotografije / Autor: Državne nekretnine

Površina prostora je 82,93 kvadratna metra. Nalazi se u prizemlju ulične zgrade, a početna mjesečna neto zakupnina je 3.483,06 kuna.

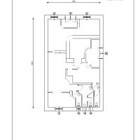
Dubrovnik - Od puča 17/Široka 5

Dubrovnik -  Od Puča 17/Široka 5
  • Dubrovnik -  Od Puča 17/Široka 5
  • Dubrovnik -  Od Puča 17/Široka 5
  • Dubrovnik -  Od Puča 17/Široka 5
Dubrovnik - Od puča 17/Široka 5 Izvor: Licencirane fotografije / Autor: Državne nekretnine

Površina prostora je 19,11 kvadratnih metara. Nalazi se u prizemlju ulične zgrade, a početna mjesečna neto zakupnina je 11.466 kuna.

Karlovac - Banija 1

Karlovac - Banija 1
  • Karlovac - Banija 1
  • Karlovac - Banija 1
Karlovac - Banija 1 Izvor: Licencirane fotografije / Autor: Državne nekretnine

Površina prostora je 30,15 kvadratnih metara. Nalazi se u prizemlju ulične zgrade, a početna mjesečna neto zakupnina je 823,09 kuna.

Karlovac - Banija 1

Karlovac - Banija 1
  • Karlovac - Banija 1
  • Karlovac - Banija 1
Karlovac - Banija 1 Izvor: Licencirane fotografije / Autor: Državne nekretnine

Površina prostora je 26,2 kvadratna metra. Nalazi se u prizemlju ulične zgrade, a početna mjesečna neto zakupnina je 715,26 kuna.

Opatija - Maršala Tita 59

Opatija - Maršala Tita 59
  • Opatija - Maršala Tita 59
  • Opatija - Maršala Tita 59
Opatija - Maršala Tita 59 Izvor: Licencirane fotografije / Autor: Državne nekretnine

Površina prostora je 13 kvadratnih metara. Nalazi se u prizemlju ulične zgrade, a početna mjesečna neto zakupnina je 1.523,11 kuna.

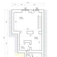
Osijek - Županijska ulica 20

Osijek - Županijska ulica 20
  • Osijek - Županijska ulica 20
  • Osijek - Županijska ulica 20
  • Osijek - Županijska ulica 20
Osijek - Županijska ulica 20 Izvor: Licencirane fotografije / Autor: Državne nekretnine

Površina prostora je 69,34 kvadratna metra. Nalazi se u prizemlju ulične zgrade, a početna mjesečna neto zakupnina je 3.436,49 kuna.

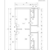
Osijek - Županijska ulica 11

Osijek - Županijska ulica 11
  • Osijek - Županijska ulica 11
  • Osijek - Županijska ulica 11
  • Osijek - Županijska ulica 11
Osijek - Županijska ulica 11 Izvor: Licencirane fotografije / Autor: Državne nekretnine

Površina prostora je 181,12 kvadratnih metara. Nalazi se u prizemlju i podrumu ulične zgrade, a početna mjesečna neto zakupnina je 5.917,03 kune.

Osijek - Županijska ulica 30

Osijek - Županijska ulica 30
  • Osijek - Županijska ulica 30
  • Osijek - Županijska ulica 30
  • Osijek - Županijska ulica 30
  • Osijek - Županijska ulica 30
Osijek - Županijska ulica 30 Izvor: Licencirane fotografije / Autor: Državne nekretnine

Površina prostora je 95,73 kvadratna metra. Nalazi se u prizemlju ulične zgrade, a početna mjesečna neto zakupnina je 4.066,61 kunu.

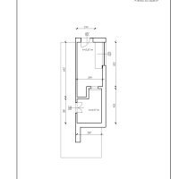
Petrinja - Dragutina Careka 41A

Petrinja - Dragutina Careka 41A
  • Petrinja - Dragutina Careka 41A
  • Petrinja - Dragutina Careka 41A
Petrinja - Dragutina Careka 41A Izvor: Licencirane fotografije / Autor: Državne nekretnine

Površina prostora je 252,75 kvadratnih metara. Nalazi se u prizemlju ulične zgrade, a početna mjesečna neto zakupnina je 3033 kune.

Petrinja - Dražena Petrovića 18

Petrinja - Dražena Petrovića 18
  • Petrinja - Dražena Petrovića 18
  • Petrinja - Dražena Petrovića 18
  • Petrinja - Dražena Petrovića 18
Petrinja - Dražena Petrovića 18 Izvor: Licencirane fotografije / Autor: Državne nekretnine

Površina prostora je 44,01 kvadratni metar. Nalazi se u prizemlju ulične zgrade, a početna mjesečna neto zakupnina je 528,12 kuna.

Petrinja - Trg Stjepana Radića 8

Petrinja - Trg Stjepana Radića 8
  • Petrinja - Trg Stjepana Radića 8
  • Petrinja - Trg Stjepana Radića 8
  • Petrinja - Trg Stjepana Radića 8
Petrinja - Trg Stjepana Radića 8 Izvor: Licencirane fotografije / Autor: Državne nekretnine

Površina prostora je 228,88 kvadratnih metara. Nalazi se u prizemlju i podrumu ulične zgrade, a početna mjesečna neto zakupnina je 9.155,2 kune.

Slavonski Brod - Trg Ivane Brlić Mažuranić 3

Slavonski Brod - Trg Ivane Brlić Mažuranić 3
  • Slavonski Brod - Trg Ivane Brlić Mažuranić 3
  • Slavonski Brod - Trg Ivane Brlić Mažuranić 3
  • Slavonski Brod - Trg Ivane Brlić Mažuranić 3
  • Slavonski Brod - Trg Ivane Brlić Mažuranić 3
  • Slavonski Brod - Trg Ivane Brlić Mažuranić 3
Slavonski Brod - Trg Ivane Brlić Mažuranić 3 Izvor: Licencirane fotografije / Autor: Državne nekretnine

Površina prostora je 33,49 kvadratnih metara. Nalazi se u prizemlju ulične zgrade, a početna mjesečna neto zakupnina je 1.553,93 kune.

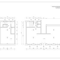
Split - Obala kneza Branimira 1

Split - Obala kneza Branimira 1
  • Split - Obala kneza Branimira 1
  • Split - Obala kneza Branimira 1
  • Split - Obala kneza Branimira 1
  • Split - Obala kneza Branimira 1
Split - Obala kneza Branimira 1 Izvor: Licencirane fotografije / Autor: Državne nekretnine

Površina prostora je 103 kvadratna metra. Nalazi se u prizemlju ulične zgrade, a početna mjesečna neto zakupnina je 8755 kuna.

Split - Teutina 1

Split - Teutina 1
  • Split - Teutina 1
  • Split - Teutina 1
  • Split - Teutina 1
  • Split - Teutina 1
Split - Teutina 1 Izvor: Licencirane fotografije / Autor: Državne nekretnine

Površina prostora je 99 kvadratnih metara. Nalazi se u prizemlju ulične zgrade, a početna mjesečna neto zakupnina je 11.583 kune.

Varaždin - Ulica Ivana Kukuljevića 3

Varaždin - Ulica Ivana Kukuljevića 3
  • Varaždin - Ulica Ivana Kukuljevića 3
  • Varaždin - Ulica Ivana Kukuljevića 3
Varaždin - Ulica Ivana Kukuljevića 3 Izvor: Licencirane fotografije / Autor: Državne nekretnine

Površina prostora je 150 kvadratnih metara. Nalazi se u prizemlju ulične zgrade, a početna mjesečna neto zakupnina je 5700 kuna.

Vrginmost - Kralja Petra Svačića 23

Vrginmost - Kralja Petra Svačića 23
  • Vrginmost - Kralja Petra Svačića 23
  • Vrginmost - Kralja Petra Svačića 23
  • Vrginmost - Kralja Petra Svačića 23
Vrginmost - Kralja Petra Svačića 23 Izvor: Licencirane fotografije / Autor: Državne nekretnine

Površina prostora je 111,75 kvadratnih metara. Nalazi se u prizemlju ulične zgrade, a početna mjesečna neto zakupnina je 1.177,5 kuna.

Vrginmost - Kralja Petra Svačića 27

Vrginmost -  Kralja Petra Svačića 27
  • Vrginmost -  Kralja Petra Svačića 27
  • Vrginmost -  Kralja Petra Svačića 27
Vrginmost - Kralja Petra Svačića 27 Izvor: Licencirane fotografije / Autor: Državne nekretnine

Površina prostora je 130,74 kvadratna metra. Nalazi se u prizemlju ulične zgrade, a početna mjesečna neto zakupnina je 1.307,4 kune.

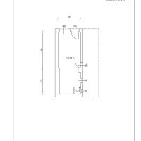
Zadar - Put Pudarice 30/B

Zadar - Put Pudarice 30/B
  • Zadar - Put Pudarice 30/B
  • Zadar - Put Pudarice 30/B
Zadar - Put Pudarice 30/B Izvor: Licencirane fotografije / Autor: Državne nekretnine

Površina prostora je 27 kvadratnih metara. Nalazi se u prizemlju ulične zgrade, a početna mjesečna neto zakupnina je 1.046,52 kune.